![]() |
电动球阀简要描述:电动球阀符合JB/T8528-97《普通型阀门电动装置技术条件》 |
产品特点
·BLAQ系列小口径电动球阀配用BL系列电动执行器。
·直接接收计算机或工业仪表等输出的4~20mADC或1~5VDC控制信号,根据阀位反馈信号与设定值比较,对执行器进行智能步距调整(PID调节),以实现阀门的******定 位,同时输出4~20mADC的位置反馈信号。
·体积小,轻便宜人,性能******,配套简单,流通能力大。
·特别适合于介质为粘稠,含颗粒,纤维性质的场合。
·广泛应用于水泥,食品,环保,轻工,石油,造纸,化工,教学和科研设备,电力等行业的工业控制系统。
执行器主要参数
电源:DC24V、AC110V、AC220V、AC380V 50/60Hz;
输入信号:4-20mA.DC、1-5V.DC (其他可出厂前选定);
输出信号:4-20mA.DC (其他可出厂前选定);
环境温度:-25℃~+60℃;
防护等级:IP67;
阀门主要参数
|
公称通径(mm) |
DN15~DN100 |
|
|
公称压力(MPa) |
PN1.6 2.5 4.0 |
|
|
泄漏量 |
软密封:零泄漏 |
硬密封:≤额定流量的10-5 |
|
流量特性 |
快开特性 |
|
|
适用温度 |
密封面 |
|
|
PTFE≤150℃ RTFE≤180℃ PPL≤300℃ 硬密封≤450℃ |
||
主要零件材质
|
零件名称 |
材 料 |
||||||
|
阀体 |
WCB |
ZG1Cr18Ni9Ti |
CF8 (304) |
CF3 (304L) |
ZG1Cr18Ni12Mo2Ti |
CF8M (316) |
CF3M (316L) |
|
球体、阀杆 |
2Cr13 |
1Cr18Ni9Ti |
0Cr19Ni9 (304) |
00Cr19Ni11 (304L) |
1Cr18Ni12Mo2Ti |
0Cr17Ni12Mo2 (316) |
00Cr17Ni12Mo2 (316L) |
|
密封圈 |
聚四氟乙烯(PTFE)、增强聚四氟乙烯(PPL)、对位聚苯 柔性石墨 |
||||||
|
适用介质 |
水、气体、蒸汽、油品等 |
硝酸等腐蚀性介质 |
强氧化性介质 |
醋酸等腐蚀介质 |
尿素等腐蚀性介质 |
||
试验压力
|
试验压力 (MPa) |
公称压力(MPa) |
||
|
1.6 |
2.5 |
4.0 |
|
|
强度试验 |
2.4 |
3.8 |
6.0 |
|
密封试验 |
1.8 |
2.8 |
4.4 |
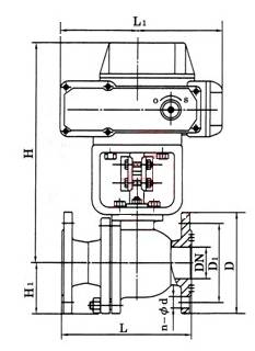
外形尺寸图表

|
公称通径 |
L |
D |
H |
L1 |
D1 |
b |
n-φd |
H1 |
|
压力MPa |
1.6/2.5/4.0 |
1.6/2.5/4.0 |
1.6/2.5/4.0 |
1.6/2.5/4.0 |
1.6/2.5/4.0 |
|||
|
DN15 |
130/130/140 |
95 |
275 |
157 |
65 |
14/16/16 |
4-14 |
48 |
|
DN20 |
140/140/150 |
105 |
280 |
157 |
75 |
14/16/16 |
4-14 |
53 |
|
DN25 |
150/150/165 |
115 |
287 |
157 |
85 |
14/16/16 |
4-14 |
58 |
|
DN32 |
165/165/180 |
135 |
354 |
208 |
100 |
16/16/18 |
4-18 |
68 |
|
DN40 |
180/180/200 |
145 |
312 |
208 |
110 |
16/16/18 |
4-18 |
73 |
|
DN50 |
200/200/220 |
160 |
325 |
208 |
125 |
16/20/20 |
4-18 |
80 |
|
DN65 |
220/220/250 |
180 |
335 |
256 |
145 |
18/22/22 |
4-18/8-18/8-18 |
90 |
|
DN80 |
250/250/280 |
195 |
365 |
256 |
180 |
20/22/22 |
8-18 |
98 |
|
DN100 |
280/280/320 |
215/230/230 |
400 |
256 |
180/190/190 |
20/24/24 |
8-18/8-23/8-23 |
120 |








